Jump to Navigation
Domov
  • Úvod
  • Domy
  • PôDORYSY
  • POZEMKY
  • Galéria
  • Kontakt

PODORYSY

Valentina 75
Valentina 75
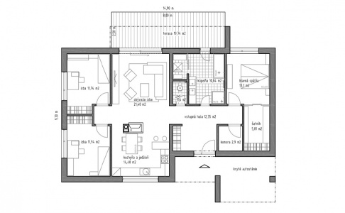
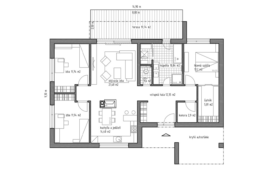
Valentina 100
Valentina 100
Valentina 75 s garážou
Valentina 75 s garážou
Valentina 100 + garáž
Valentina 100 + garáž